Локальная канализация, ёмкости
Канализация и дренаж являются базовыми составляющими системы коммуникаций в загородных домах. Они служат для сбора и удаления сточных вод, обеспечивая комфортные условия проживания. Наличие функционирующей системы канализации играет важную роль в поддержании гигиеничности и здоровья жителей, а также в охране окружающей среды.
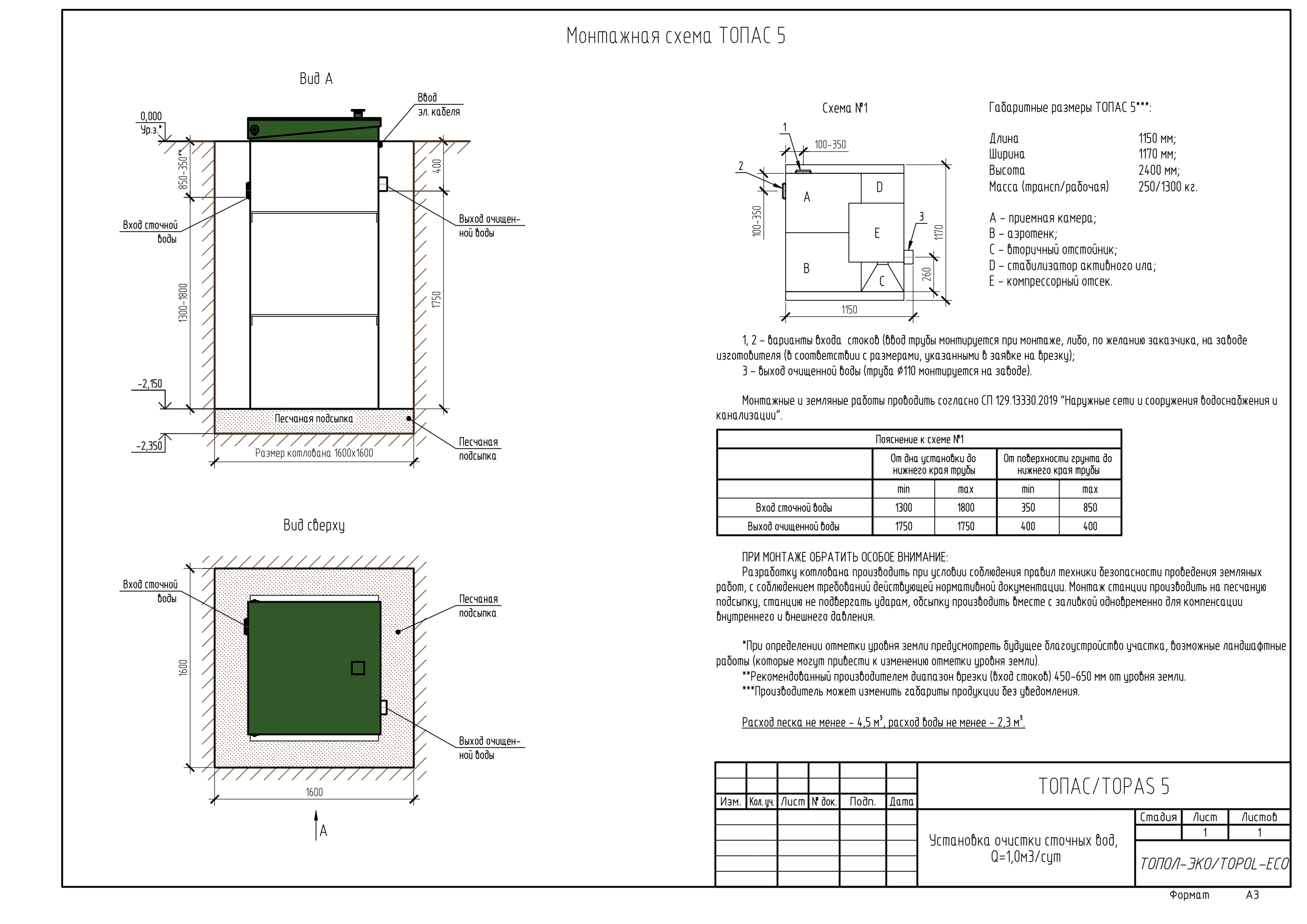
Назначение канализации состоит в сборе отходных вод из различных источников, таких как туалеты и ванные комнаты, а также их последующей переработке и удалении. Основной принцип работы канализации заключается в использовании гравитационной силы для отвода сточных вод посредством труб в направлении специальных колодцев, которые также можно использовать для технического обслуживания системы. Канализационный дренаж отвечает за отделение и очистку технических вод, используемых для промыва труб, от загрязнений.
Канализационная система имеет разные виды, отличающиеся по способу очистки сточных вод:
- Биологическая очистка - включает в себя использование специальных бактерий и микроорганизмов для разложения органических веществ в сточных водах.
- Механическая очистка - предусматривает применение фильтров и септиков для удаления механических примесей и загрязнений из сточных вод.
- Ультрафиолетовая очистка – дезинфицирование стока за счет облучения УФ лучами, с целью уничтожения потенциально опасной микрофлоры (бактерии и тп)
- Комбинированная очистка - сочетает в себе методы биологической, механической и ультрафиолетовой очистки для наиболее эффективного удаления загрязнений.
При установке канализационной системы для загородного дома следует учитывать несколько критериев:
- Объем и характер сточных вод: В зависимости от этого определяется диаметр и материал труб, а также необходимость использования дополнительных элементов очистки.
- Топография участка: Необходимо учесть рельеф участка и его склон, чтобы правильно расположить трубы с правильным уклоном.
- Глубина заложения труб: При планировке установки канализационной системы нужно учитывать глубину заложения труб для защиты от заморозков и возможности обслуживания.
- Проектные нормы и правила: Необходимо соблюдать местные проектные нормы и правила для установки канализационной системы, такие как минимальные уклоны труб, требования к герметичности и допустимые типы материалов.
- Удобство эксплуатации и техническое обслуживание: Система должна быть легкодоступна для проведения инспекций, очистки и ремонта. Необходимо предусмотреть доступ к колодцам и фитингам для обслуживания.
- Экологические соображения: При выборе системы канализации следует учитывать возможность переработки и очистки сточных вод для минимизации негативного воздействия на окружающую среду.
















































