Забор-жалюзи

Забор является одним из основных элементов экстерьера загородного дома. Он помогает обеспечить безопасность на участке, а также выполняет эстетическую функцию. Одной из современных разновидностей ограждений является забор-жалюзи. Он состоит из расположенных горизонтально под углом ламелей - узких металлических панелей. За счет такой конструкции ограждение внешне напоминает привычные многим жалюзи, которые зачастую используются в качестве штор.
Заборы-жалюзи отличаются высокой прочностью. Также за счет особенностей конструкции видимость участка снаружи сильно ограничена, однако обзор с внутренней территории остается возможным. Кроме этого, забор-жалюзи пропускает свет, что важно растущим недалеко от него растениям.
Несущие конструкции для забора-жалюзи могут изготавливаться из дерева, кирпича или металла. При производстве ламелей могут использоваться следующие материалы:
- Дерево. Как правило, при изготовлении ограждений используется сосна, несколько реже – лиственные породы. Деревянный забор имеет привлекательный внешний вид с уникальной текстурой и отличается доступностью. Следует отметить, что дерево нуждается в периодической обработке для защиты от влаги и УФ-лучей. Деревянные ламели изготавливаются длиной до 2 метров для снижения риска возможной деформации.
- Металл. Отличается высокой устойчивостью к механическим нагрузкам и прочностью. Длина металлических ламелей может составлять от 2,5 до 3 метров. Кроме этого, ламели из металла могут иметь различную форму. При наличии защитного верхнего покрытия металл устойчив к неблагоприятным климатическим условиям, поэтому характеризуется внушительным сроком службы.
В последнее время большей популярностью пользуются забор-жалюзи из металла, так на что же стоит обратить внимание при его выборе:
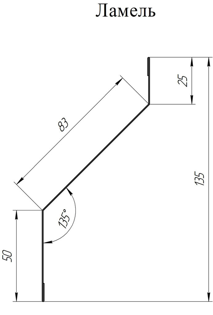
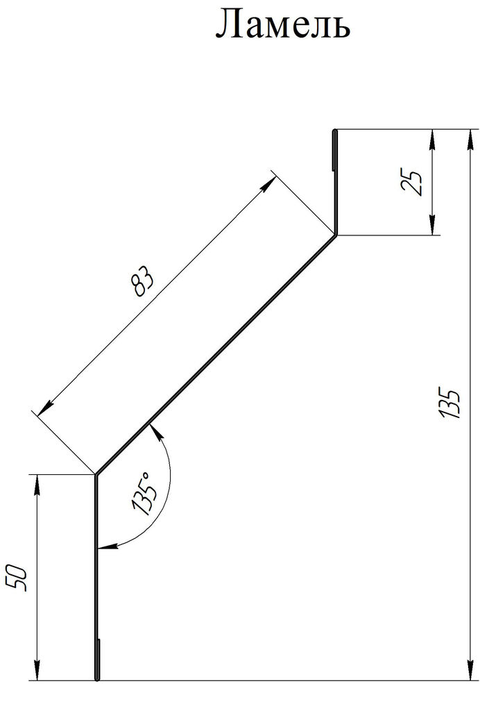
- Ламели. Рекомендуется выбирать ламели из профлиста С44, поскольку он характеризуется высокой жесткостью. За счет этого ламели смогут выдержать сильные ветровые нагрузки, а также не будут деформироваться под собственным весом.
- Верхнее покрытие. Цинк помогает предотвратить скорое появление ржавчины на металле. Также для придания привлекательного внешнего вида на ограждение наносится слой полиэстера с однородным окрасом или покрытие Printech для имитации текстуры натуральных материалов (дерева, кирпича и камня).
- Соотношение высоты секции и количества ламелей. Чтобы ограждение наиболее эффективно выполняло свои функции, на каждый метр высоты должно приходиться приблизительно 12 шт ламелей.
- Внешний вид. Согласно актуальным тенденциям в ландшафтном дизайне, цвет ограждения должен быть приблизительно того же оттенка, что и крыша дома. Значительное отличие по цвету помешает создать гармоничный экстерьер.
Найдено 157 товаров

























































































































